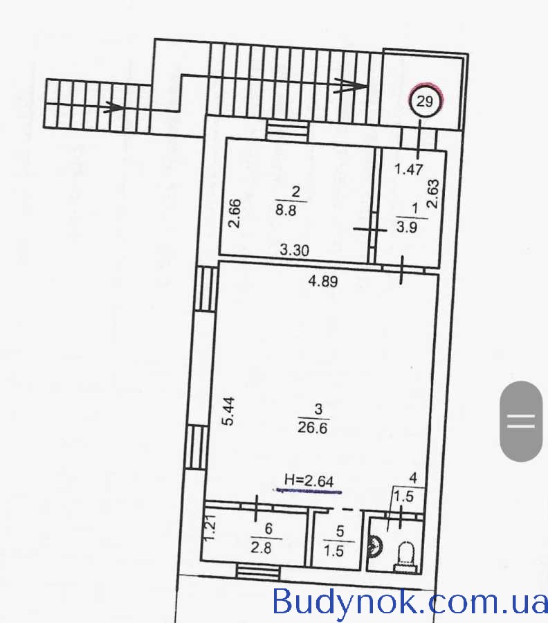
вулиця Сагайдачного 35. Поділ. Окремий вхід по сходам. Продаж нежитлового приміщення, S-45 м.кв. на 3-ому поверсі, розташоване у дворі. Вхід через арку. 2 окремі кімнати, господарське приміщення. Електричний котел. Сигналізація. без комісії. Відео перегляд по запиту!
Новая учетная запись создана
Мы отправили Вам письмо для подтверждения аккаунта.
Для завершения активации перейдите по ссылке
Вам необходимо указать пароль
для управления аккаунтом
Введите E-mail
указанный при регистрации
Пароль изменен
Мы отправили Вам письмо с новым паролем
Напишите вопрос и мы свяжемся с Вами в ближайшее время
Напишите вопрос и мы свяжемся с Вами в ближайшее время