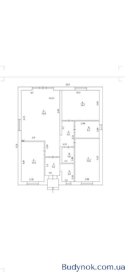
Продаж одноповерхового будинку загальною площею 100 кв.м на просторій ділянці 6,2 соток. Будинок знаходиться в с.Білогородка, Бучанський р-н. на асфальтованій та забудованій вулиці. Будинок збудований з газоблоку. Ззовні утеплений пінопластом. Дах металочерепиця. Має кухню-вітальню, 3 житлові кімнати, санвузол, котельню та передпокій. Комунікації: Газ, світло 13 кВт, свердловина, септик з переливом 10 м3. Ділянка огороджена забором. Поряд нові забудови. Можливий продаж по державним програмам. Продаж від забудовника, без комісії!
Новая учетная запись создана
Мы отправили Вам письмо для подтверждения аккаунта.
Для завершения активации перейдите по ссылке
Вам необходимо указать пароль
для управления аккаунтом
Введите E-mail
указанный при регистрации
Пароль изменен
Мы отправили Вам письмо с новым паролем
Напишите вопрос и мы свяжемся с Вами в ближайшее время
Напишите вопрос и мы свяжемся с Вами в ближайшее время