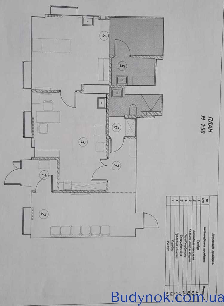
Продається приміщення під клініку 73 м.кв.,на першому поверсі з окремим входом, фасад.Приміщення повністю відповідає вимогам для медичної діяльності. Дуже вдале планування: вестибюль-чекальня, кабінет лікаря, перев`язувальна, стерилізаційна, туалетна кімната з душем. Опалення централізоване + підігрів підлоги, кондиционери, бойлер. Гарна транспортна розв`язка, неподалік ст.метро Дорогожичи та Почайна. Є гостьова стоянка. 150000у.е.
Новая учетная запись создана
Мы отправили Вам письмо для подтверждения аккаунта.
Для завершения активации перейдите по ссылке
Вам необходимо указать пароль
для управления аккаунтом
Введите E-mail
указанный при регистрации
Пароль изменен
Мы отправили Вам письмо с новым паролем
Напишите вопрос и мы свяжемся с Вами в ближайшее время
Напишите вопрос и мы свяжемся с Вами в ближайшее время