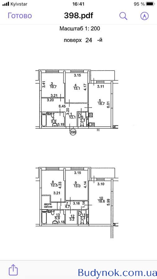
Продається квартира в зданому будинку ,рік побудови 2023.Квартира розташована на 24 та 25 поверхах.Всі кімнати правильної форми . Стан квартири - під оздоблення.Квартира може бути використана як для однієї сім"ї так і для бізнесу/шляхом розподілу може війти 2або4або6 смарт квартир під довгострокову оренду ,а в майбутньому під подобову з огляду на беспосередню близкість аеропорту Жуляни.
Киевская область, Киев, Солом'янський, Чоколовский бульв., 42а
Киевская область, Киев, Дніпровський, Березняківська вул., 14А
Нова обліковий запис
Ми Вам надіслали лист для підтвердження аккаунта.
Для завершення активації перейдіть за посиланням
Вам необхідно вказати пароль
для управління обліковим записом
Введіть E-mail
вказаний при реєстрації
Пароль змінено
Ми Вам надіслали лист із новим паролем
Напишіть питання і ми зв'яжемося з Вами найближчим часом
Напишіть питання і ми зв'яжемося з Вами найближчим часом